Vatika Sovereign Next
Sector 82A, Gurugram 
                    
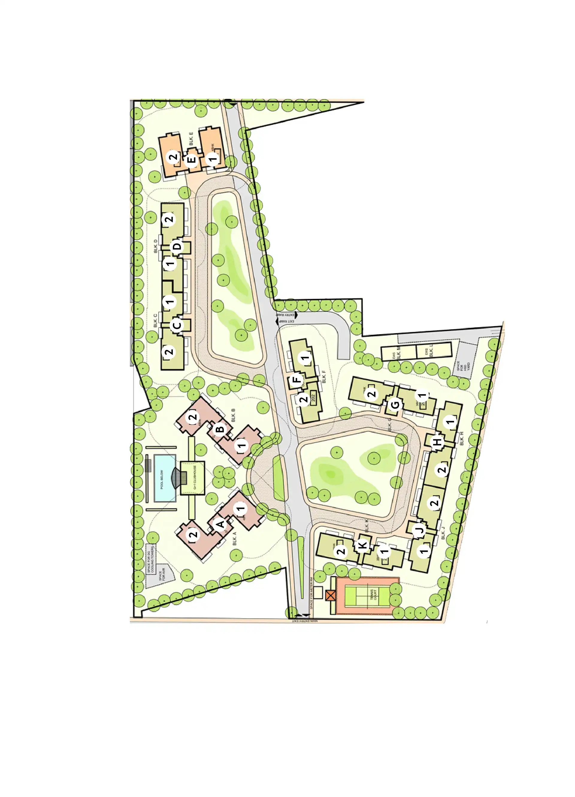
                                    Vatika Sovereign Next, a high-rise society located in  Sector 82A of  Gurugram. This residential project is a Ready To Move society. Vatika Sovereign Next is a RERA registered project with the following RERA numbers for different phases - Phase 1: 280 OF 2017 DATED 09.10.2017. Vatika Sovereign Next is spread across 7.5 acres of land. It has 10 towers and total of 224 units. This society has apartments in 3BHK and 4BHK configurations. Vatika Sovereign Next has 4 types of  Vastu compliant apartments that meets the criteria set by Hunt Vastu Homes. It makes it a total
                                     read
                                        more
                                
                                                    
                    Completion Year
                                        2022
Construction Status
                        Ready To Move
Price Range 
                      ₹2.34 cr - ₹4.83 cr
Developer
                       Vatika Group
Select Tower & Flat to View Vastu Details
Unit 2
Type A1
					                     4BHK+4Toilet
(Super Area:3270
sqft)
		
		Floors: Ground	
		  		
				Flat numbers: 102, 202, 302, 402,  etc.
			
                               
                Unit 2
Penthouse
					                     5BHK+6Toilet
(Super Area:5095
sqft)
		
		Floors: 26	
		  		
				Flat numbers: 102, 202, 302, 402,  etc.
			
                               
                Unit 2
Type 1
					                     2BHK+3Toilet
(Super Area:5095
sqft)
		
		Floors: All Floors	
		  		
				Flat numbers: 102, 202, 302, 402,  etc.
			
                               
                Unit 2
Type 1
					                     2BHK+2Toilet
(Super Area:5095
sqft)
		
		Floors: All Floors	
		  		
				Flat numbers: 102, 202, 302, 402,  etc.
			
                               
                Unit 2
Penthouse
					                     5BHK+6Toilet
(Super Area:5095
sqft)
		
		Floors: 26	
		  		
				Flat numbers: 102, 202, 302, 402,  etc.
			
                               
                Unit 2
Type 2
					                     2BHK+3Toilet
(Super Area:5095
sqft)
		
		Floors: All Floors	
		  		
				Flat numbers: 102, 202, 302, 402,  etc.
			
                               
                Unit 2
Type 2
					                     2BHK+2Toilet
(Super Area:5095
sqft)
		
		Floors: All Floors	
		  		
				Flat numbers: 102, 202, 302, 402,  etc.
			
                               
                Unit 2
Type A1
					                     4BHK+4Toilet
(Super Area:3270
sqft)
		
		Floors: Ground	
		  		
				Flat numbers: 102, 202, 302, 402,  etc.
			
                               
                Unit 2
Type B
					                     4BHK+4Toilet
(Super Area:3250
sqft)
		
		Floors: Ground	
		  		
				Flat numbers: 102, 202, 302, 402,  etc.
			
                               
                Unit 1
Penthouse
					                     5BHK+6Toilet
(Super Area:5140
sqft)
		
		Floors: 5	
		  		
				Flat numbers: 101, 201, 301, 401,  etc.
			
                               
                Unit 1
Penthouse
					                     4BHK+5Toilet
(Super Area:4250
sqft)
		
		Floors: 5	
		  		
				Flat numbers: 101, 201, 301, 401,  etc.
			
                               
                Unit 1
Penthouse
					                     4BHK+5Toilet
(Super Area:4350
sqft)
		
		Floors: 5	
		  		
				Flat numbers: 101, 201, 301, 401,  etc.
			
                               
                Unit 2
Type Special
					                     3BHK+3Toilet
(Super Area:2770
sqft)
		
		Floors: Ground	
		  		
				Flat numbers: 102, 202, 302, 402,  etc.
			
                               
                Unit 1
Type 1
					                     2BHK+2Toilet
(Super Area:4350
sqft)
		
		Floors: All Floors	
		  		
				Flat numbers: 101, 201, 301, 401,  etc.
			
                               
                Unit 1
Penthouse
					                     4BHK+5Toilet
(Super Area:4350
sqft)
		
		Floors: 5	
		  		
				Flat numbers: 101, 201, 301, 401,  etc.
			
                               
                Unit 1
Type 1
					                     1BHK+3Toilet
(Super Area:4350
sqft)
		
		Floors: All Floors	
		  		
				Flat numbers: 101, 201, 301, 401,  etc.
			
                               
                Unit 1
Penthouse
					                     4BHK+5Toilet
(Super Area:4350
sqft)
		
		Floors: 5	
		  		
				Flat numbers: 101, 201, 301, 401,  etc.
			
                               
                Unit 1
Type 1
					                     1BHK+3Toilet
(Super Area:4350
sqft)
		
		Floors: All Floors	
		  		
				Flat numbers: 101, 201, 301, 401,  etc.
			
                               
                Unit 1
Type 1
					                     2BHK+1Toilet
(Super Area:4350
sqft)
		
		Floors: All Floors	
		  		
				Flat numbers: 101, 201, 301, 401,  etc.
			
                               
                Vatika Sovereign Next Site Plan
 
                                 
                                     
                                     
                                     
                                     
                                     
                                     
                             
	        .png)