Klj Pinnacle
Sector 77, Faridabad
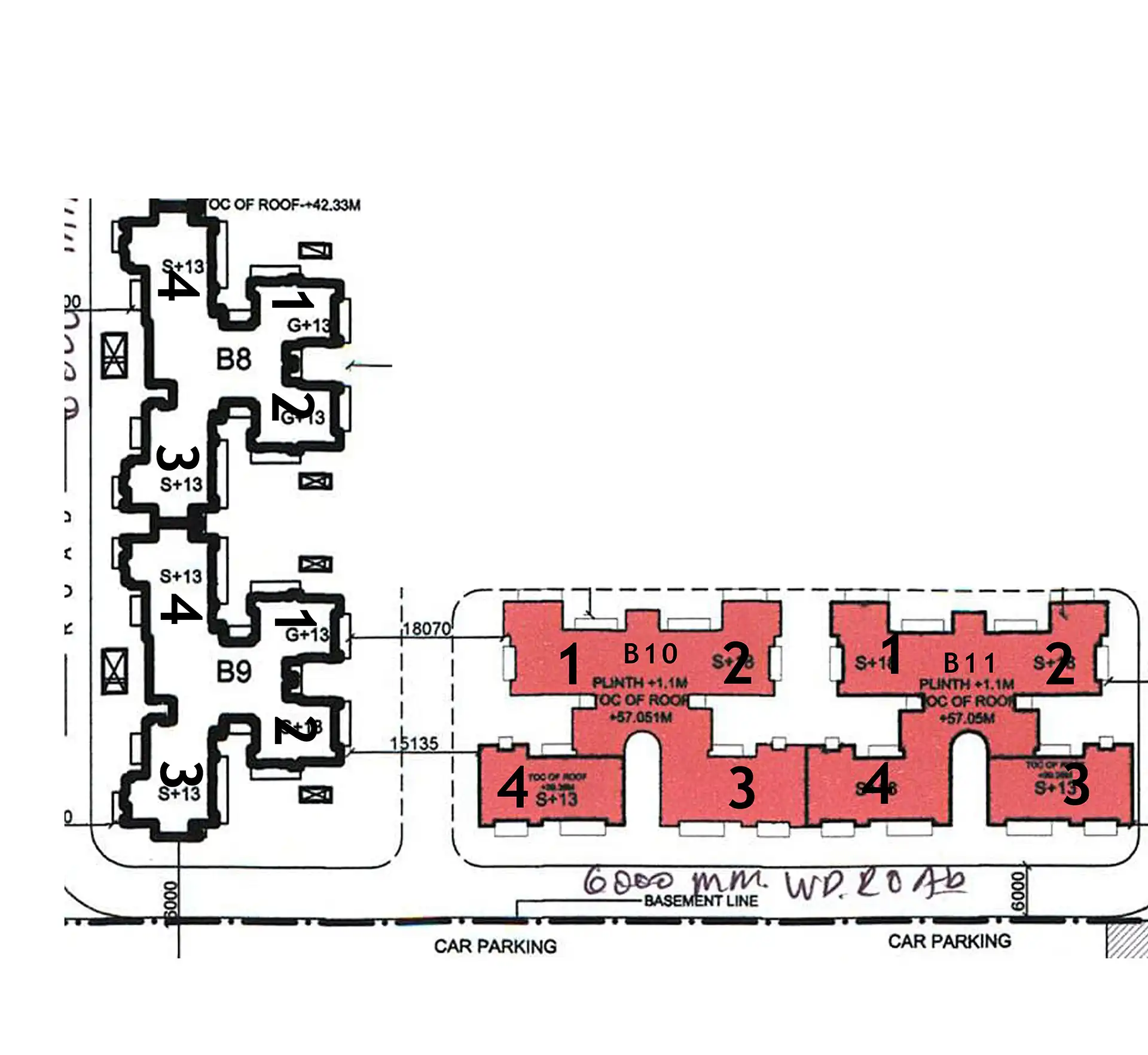
Klj Pinnacle, a high-rise society located in Sector 77 of Faridabad. This residential project is a Ready To Move society. Klj Pinnacle is not registered under RERA. Klj Pinnacle is spread across 5 acres of land. It has 4 towers and total of 292 units. This society has apartments in 3BHK and 4BHK configurations. Klj Pinnacle has 6 types of Vastu compliant apartmentsthat meets the criteria set by Hunt Vastu Homes. It makes it a total possibility of 104 Vastu compliant apartments that follow better Vastu principles than the other apartment in the society. 3BHK, 4BHK flats
read
more
Completion Year
2019
Construction Status
Ready To Move
Price Range
₹63 lakh - ₹63 lakh
Developer
KLJ Developers Private Limited
Select Tower & Flat to View Vastu Details
Unit 1
4BHK+3Toilet
(Super Area:2080
sqft)
Floors: All Floors
Flat numbers: 101, 201, 301, 401, etc.
Unit 2
4BHK+3Toilet
(Super Area:2080
sqft)
Floors: All Floors
Flat numbers: 102, 202, 302, 402, etc.
Unit 3
4BHK+3Toilet
(Super Area:2080
sqft)
Floors: All Floors
Flat numbers: 103, 203, 303, 403, etc.
Unit 1
4BHK+3Toilet
(Super Area:2080
sqft)
Floors: All Floors
Flat numbers: 101, 201, 301, 401, etc.
Unit 2
4BHK+3Toilet
(Super Area:2080
sqft)
Floors: All Floors
Flat numbers: 102, 202, 302, 402, etc.
Unit 3
4BHK+3Toilet
(Super Area:2080
sqft)
Floors: All Floors
Flat numbers: 103, 203, 303, 403, etc.
Unit 1
3BHK+2Toilet
(Super Area:1710
sqft)
Floors: All Floors
Flat numbers: 101, 201, 301, 401, etc.
Unit 2
3BHK+2Toilet
(Super Area:1710
sqft)
Floors: All Floors
Flat numbers: 102, 202, 302, 402, etc.
Unit 3
3BHK+2Toilet
(Super Area:1710
sqft)
Floors: All Floors
Flat numbers: 103, 203, 303, 403, etc.
Unit 1
3BHK+2Toilet
(Super Area:1710
sqft)
Floors: All Floors
Flat numbers: 101, 201, 301, 401, etc.
Unit 2
3BHK+2Toilet
(Super Area:1710
sqft)
Floors: All Floors
Flat numbers: 102, 202, 302, 402, etc.
Unit 3
3BHK+2Toilet
(Super Area:1710
sqft)
Floors: All Floors
Flat numbers: 103, 203, 303, 403, etc.
Klj Pinnacle Site Plan
