Smartworld One Dxp
Sector 113, Gurugram
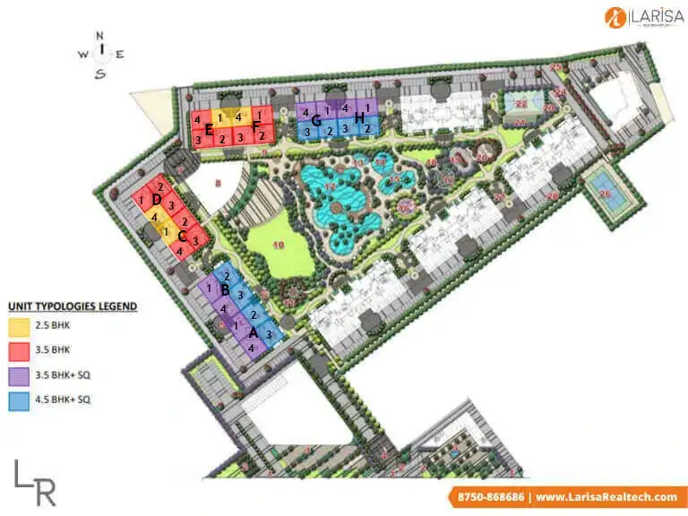
Smartworld One Dxp, a high-rise society located in Sector 113 of Gurugram. This residential project is an Under Construction society. Smartworld One Dxp is a RERA registered project with the following RERA numbers for different phases - Phase I: RERA-GRG-PROJ-1217-2022. Smartworld One Dxp is spread across 8 acres of land. It has 8 towers and total of 900 units. This society has apartments in 2BHK, 3BHK and 4BHK configurations. Smartworld One Dxp has 6 types of Vastu compliant apartmentsthat meets the criteria set by Hunt Vastu Homes. It makes it a total possibility of 290 Vastu compliant
read
more
Completion Year
2029
Construction Status
Under Construction
Price Range
₹2.46 cr - ₹4.70 cr
Developer
Smart World Developers
Select Tower & Flat to View Vastu Details
Unit 1
4BHK+3Toilet
(Carpet Area:2050
sqft)
Floors: All Floors
Flat numbers: 101, 201, 301, 401, etc.
Unit 2
4BHK+4Toilet
(Carpet Area:2050
sqft)
Floors: All Floors
Flat numbers: 102, 202, 302, 402, etc.
Unit 3
4BHK+4Toilet
(Carpet Area:2050
sqft)
Floors: All Floors
Flat numbers: 103, 203, 303, 403, etc.
Unit 1
4BHK+3Toilet
(Carpet Area:2050
sqft)
Floors: All Floors
Flat numbers: 101, 201, 301, 401, etc.
Unit 2
4BHK+4Toilet
(Carpet Area:2050
sqft)
Floors: All Floors
Flat numbers: 102, 202, 302, 402, etc.
Unit 3
4BHK+4Toilet
(Carpet Area:2050
sqft)
Floors: All Floors
Flat numbers: 103, 203, 303, 403, etc.
Unit 1
2BHK+2Toilet
(Carpet Area:1370
sqft)
Floors: All Floors
Flat numbers: 101, 201, 301, 401, etc.
Unit 2
3BHK+3Toilet
(Carpet Area:1850
sqft)
Floors: All Floors
Flat numbers: 102, 202, 302, 402, etc.
Unit 3
3BHK+3Toilet
(Carpet Area:1850
sqft)
Floors: All Floors
Flat numbers: 103, 203, 303, 403, etc.
Unit 1
3BHK+3Toilet
(Carpet Area:1850
sqft)
Floors: All Floors
Flat numbers: 101, 201, 301, 401, etc.
Unit 2
3BHK+3Toilet
(Carpet Area:1850
sqft)
Floors: All Floors
Flat numbers: 102, 202, 302, 402, etc.
Unit 3
3BHK+3Toilet
(Carpet Area:1850
sqft)
Floors: All Floors
Flat numbers: 103, 203, 303, 403, etc.
Unit 1
2BHK+2Toilet
(Carpet Area:1370
sqft)
Floors: All Floors
Flat numbers: 101, 201, 301, 401, etc.
Unit 2
3BHK+3Toilet
(Carpet Area:1850
sqft)
Floors: All Floors
Flat numbers: 102, 202, 302, 402, etc.
Unit 3
3BHK+3Toilet
(Carpet Area:1850
sqft)
Floors: All Floors
Flat numbers: 103, 203, 303, 403, etc.
Unit 1
3BHK+3Toilet
(Carpet Area:1850
sqft)
Floors: All Floors
Flat numbers: 101, 201, 301, 401, etc.
Unit 2
3BHK+3Toilet
(Carpet Area:1850
sqft)
Floors: All Floors
Flat numbers: 102, 202, 302, 402, etc.
Unit 3
3BHK+3Toilet
(Carpet Area:1850
sqft)
Floors: All Floors
Flat numbers: 103, 203, 303, 403, etc.
Unit 1
3BHK+3Toilet
(Carpet Area:2050
sqft)
Floors: All Floors
Flat numbers: 101, 201, 301, 401, etc.
Unit 2
4BHK+4Toilet
(Carpet Area:2600
sqft)
Floors: All Floors
Flat numbers: 102, 202, 302, 402, etc.
Unit 3
4BHK+4Toilet
(Carpet Area:2600
sqft)
Floors: All Floors
Flat numbers: 103, 203, 303, 403, etc.
Unit 1
3BHK+3Toilet
(Carpet Area:2050
sqft)
Floors: All Floors
Flat numbers: 101, 201, 301, 401, etc.
Unit 2
4BHK+4Toilet
(Carpet Area:2600
sqft)
Floors: All Floors
Flat numbers: 102, 202, 302, 402, etc.
Unit 3
4BHK+4Toilet
(Carpet Area:2600
sqft)
Floors: All Floors
Flat numbers: 103, 203, 303, 403, etc.
Smartworld One Dxp Site Plan
