M3M Golf Hills
Sector 79, Gurugram
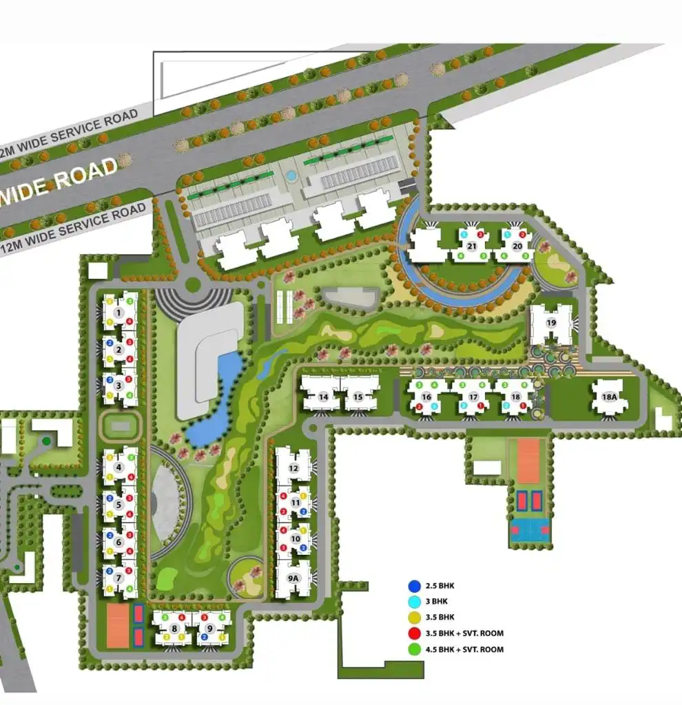
M3M Golf Hills, a high-rise society located in Kunskapsskolan International School Sector 79 of Gurugram. This residential project is an Under Construction society. M3M Golf Hills is a RERA registered project with the following RERA numbers for different phases - PhaseI: RERA-GRG-PROJ-1331-2023. M3M Golf Hills is spread across 50 acres of land. It has 16 towers and total of 1309 units. This society has apartments in 2BHK, 3BHK and 4BHK configurations. M3M Golf Hills has 2 types of Vastu compliant apartmentsthat meets the criteria set by Hunt Vastu Homes. It makes it a total possibility of 60 Vastu
read
more
Completion Year
2033
Construction Status
Under Construction
Price Range
₹2.60 cr - ₹5.00 cr
Developer
M3M India
Select Tower & Flat to View Vastu Details
Unit 1
3BHK+3Toilet
(Super Area:1900
sqft)
Floors: All Floors
Flat numbers: 101, 201, 301, 401, etc.
Unit 2
3BHK+3Toilet
(Super Area:1900
sqft)
Floors: All Floors
Flat numbers: 102, 202, 302, 402, etc.
Unit 3
4BHK+4Toilet
(Super Area:2650
sqft)
Floors: All Floors
Flat numbers: 103, 203, 303, 403, etc.
Unit 1
3BHK+3Toilet
(Super Area:1900
sqft)
Floors: All Floors
Flat numbers: 101, 201, 301, 401, etc.
Unit 2
2BHK+2Toilet
(Super Area:1420
sqft)
Floors: All Floors
Flat numbers: 102, 202, 302, 402, etc.
Unit 3
3BHK+3Toilet
(Super Area:2100
sqft)
Floors: All Floors
Flat numbers: 103, 203, 303, 403, etc.
Unit 1
3BHK+3Toilet
(Super Area:1900
sqft)
Floors: All Floors
Flat numbers: 101, 201, 301, 401, etc.
Unit 2
2BHK+2Toilet
(Super Area:1420
sqft)
Floors: All Floors
Flat numbers: 102, 202, 302, 402, etc.
Unit 3
3BHK+3Toilet
(Super Area:2100
sqft)
Floors: All Floors
Flat numbers: 103, 203, 303, 403, etc.
Unit 1
3BHK+3Toilet
(Super Area:1900
sqft)
Floors: All Floors
Flat numbers: 101, 201, 301, 401, etc.
Unit 2
3BHK+3Toilet
(Super Area:1900
sqft)
Floors: All Floors
Flat numbers: 102, 202, 302, 402, etc.
Unit 3
4BHK+4Toilet
(Super Area:2650
sqft)
Floors: All Floors
Flat numbers: 103, 203, 303, 403, etc.
Unit 1
3BHK+3Toilet
(Super Area:1900
sqft)
Floors: All Floors
Flat numbers: 101, 201, 301, 401, etc.
Unit 2
2BHK+2Toilet
(Super Area:1420
sqft)
Floors: All Floors
Flat numbers: 102, 202, 302, 402, etc.
Unit 3
3BHK+3Toilet
(Super Area:2100
sqft)
Floors: All Floors
Flat numbers: 103, 203, 303, 403, etc.
Unit 1
3BHK+3Toilet
(Super Area:1900
sqft)
Floors: All Floors
Flat numbers: 101, 201, 301, 401, etc.
Unit 2
2BHK+2Toilet
(Super Area:1420
sqft)
Floors: All Floors
Flat numbers: 102, 202, 302, 402, etc.
Unit 3
3BHK+3Toilet
(Super Area:2100
sqft)
Floors: All Floors
Flat numbers: 103, 203, 303, 403, etc.
Unit 1
3BHK+3Toilet
(Super Area:1900
sqft)
Floors: All Floors
Flat numbers: 101, 201, 301, 401, etc.
Unit 2
2BHK+2Toilet
(Super Area:1420
sqft)
Floors: All Floors
Flat numbers: 102, 202, 302, 402, etc.
Unit 3
3BHK+3Toilet
(Super Area:2100
sqft)
Floors: All Floors
Flat numbers: 103, 203, 303, 403, etc.
Unit 1
3BHK+3Toilet
(Super Area:1900
sqft)
Floors: All Floors
Flat numbers: 101, 201, 301, 401, etc.
Unit 2
3BHK+3Toilet
(Super Area:1900
sqft)
Floors: All Floors
Flat numbers: 102, 202, 302, 402, etc.
Unit 3
4BHK+4Toilet
(Super Area:2650
sqft)
Floors: All Floors
Flat numbers: 103, 203, 303, 403, etc.
Unit 1
3BHK+3Toilet
(Super Area:1900
sqft)
Floors: All Floors
Flat numbers: 101, 201, 301, 401, etc.
Unit 2
2BHK+2Toilet
(Super Area:1420
sqft)
Floors: All Floors
Flat numbers: 102, 202, 302, 402, etc.
Unit 3
3BHK+3Toilet
(Super Area:2100
sqft)
Floors: All Floors
Flat numbers: 103, 203, 303, 403, etc.
Unit 1
3BHK+3Toilet
(Super Area:1900
sqft)
Floors: All Floors
Flat numbers: 101, 201, 301, 401, etc.
Unit 2
2BHK+2Toilet
(Super Area:1420
sqft)
Floors: All Floors
Flat numbers: 102, 202, 302, 402, etc.
Unit 3
3BHK+3Toilet
(Super Area:2100
sqft)
Floors: All Floors
Flat numbers: 103, 203, 303, 403, etc.
Unit 1
3BHK+3Toilet
(Super Area:1900
sqft)
Floors: All Floors
Flat numbers: 101, 201, 301, 401, etc.
Unit 2
2BHK+2Toilet
(Super Area:1420
sqft)
Floors: All Floors
Flat numbers: 102, 202, 302, 402, etc.
Unit 3
3BHK+3Toilet
(Super Area:2100
sqft)
Floors: All Floors
Flat numbers: 103, 203, 303, 403, etc.
Unit 2
3BHK+3Toilet
(Super Area:2100
sqft)
Floors: All Floors
Flat numbers: 102, 202, 302, 402, etc.
Unit 3
4BHK+4Toilet
(Super Area:2650
sqft)
Floors: All Floors
Flat numbers: 103, 203, 303, 403, etc.
Unit 1
3BHK+3Toilet
(Super Area:2100
sqft)
Floors: All Floors
Flat numbers: 101, 201, 301, 401, etc.
Unit 3
4BHK+4Toilet
(Super Area:2650
sqft)
Floors: All Floors
Flat numbers: 103, 203, 303, 403, etc.
Unit 1
3BHK+3Toilet
(Super Area:2100
sqft)
Floors: All Floors
Flat numbers: 101, 201, 301, 401, etc.
Unit 3
4BHK+4Toilet
(Super Area:2650
sqft)
Floors: All Floors
Flat numbers: 103, 203, 303, 403, etc.
Unit 2
3BHK+3Toilet
(Super Area:2100
sqft)
Floors: All Floors
Flat numbers: 102, 202, 302, 402, etc.
Unit 3
4BHK+4Toilet
(Super Area:2650
sqft)
Floors: All Floors
Flat numbers: 103, 203, 303, 403, etc.
Unit 2
3BHK+3Toilet
(Super Area:2100
sqft)
Floors: All Floors
Flat numbers: 102, 202, 302, 402, etc.
Unit 3
4BHK+4Toilet
(Super Area:2650
sqft)
Floors: All Floors
Flat numbers: 103, 203, 303, 403, etc.
M3M Golf Hills Site Plan
