M3M Flora
Sector 68, Gurugram
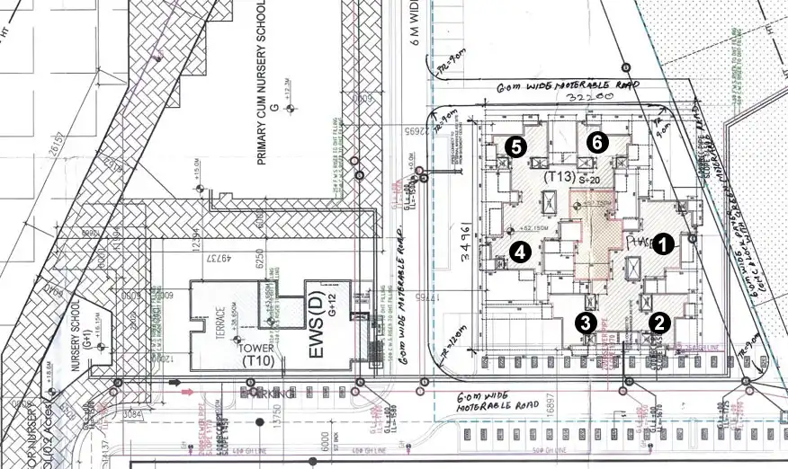
M3M Flora, a high-rise society located in Sector 68 of Gurugram. This residential project is a Ready To Move society. M3M Flora is a RERA registered project with the following RERA numbers for different phases - Phase 1: GGM/594/326/2022/69 DATED 18.07.2022. M3M Flora is spread across 0.9 acres of land. It has 1 tower and total of 114 units. This society has apartments in 2BHK, 3BHK and 4BHK configurations. M3M Flora has been assessed across multiple architectural and directional parameters by Hunt Vastu Homes. Buyers can also access detailed Vastu insights for each listed property to better understand
read
more
Completion Year
2022
Construction Status
Ready To Move
Price Range
₹1.46 cr - ₹1.83 cr
Developer
M3M India
Select Tower & Flat to View Vastu Details
Unit 1
3BHK+3Toilet
(Super Area:1635
sqft)
Floors: All Floors
Flat numbers: 101, 201, 301, 401, etc.
Unit 2
2BHK+2Toilet
(Super Area:1270
sqft)
Floors: All Floors
Flat numbers: 102, 202, 302, 402, etc.
Unit 3
2BHK+2Toilet
(Super Area:1270
sqft)
Floors: All Floors
Flat numbers: 103, 203, 303, 403, etc.
Unit 4
3BHK+3Toilet
(Super Area:1635
sqft)
Floors: All Floors
Flat numbers: 104, 204, 304, 404, etc.
Unit 5
2BHK+2Toilet
(Super Area:1274
sqft)
Floors: All Floors
Flat numbers: 105, 205, 305, 405, etc.
M3M Flora Site Plan
